Tham Khảo Mẫu Thiết Kế Nhà Ống 2 Tầng 5x12m Đẹp Nhất
Không phải ngẫu nhiên mà các mẫu thiết kế nhà ống 2 tầng 5x12m lại được ưa chuộng đến vậy. Với diện tích không quá rộng nhưng gia chủ vẫn muốn xây dựng cho mình một ngôi nhà 2 tầng khang trang, đảm bảo nhu cầu sử dụng dành cho các thành viên trong gia đình, thì đây sẽ là một phương án mà gia chủ không nên bỏ lỡ.

Và giờ chúng ta tới với chi tiết từ mặt bằng công năng cho tới phong cách thiết kế dưới đây nhé !!! Kiến Trúc – Xây Dựng Nissi _ Xây Niềm Tin – Dựng Uy Tín.
Thông tin dự án thiết kế nhà ống 2 tầng 5x12m
- Chủ đầu tư: chị Hán và Chồng là Việt Kiều Pháp
- Địa chỉ xây dựng: Thành phố Nha Trang, Khánh Hòa
- Diện tích xây dựng: 5x20m
- Phong cách kiến trúc: Hiện đại
- Loại hình kiến trúc: Nhà ống
- Quy mô: 1 trệt 1 lầu và sân thượng
- Thiết kế kiến trúc: Nguyễn Văn Mạnh
- Đơn vị thiết kế và thi công: Công ty Cổ Phần Kiến Trúc & Xây Dựng Nissi
- Năm thực hiện: 2021
Phối cảnh thiết kế nhà ống 2 tầng 5x12m.
Phong cách hiện đại được các kiến trúc sư tối giản bởi các đường nét thiết kế. Tuy nhiên, không vì thế mà mẫu nhà trở nên nhàm chán, đơn điệu. Mà ngược lại, kiến trúc sư CGH đã đưa ra những ý tưởng sáng tạo nhằm mặt tiền công trình trở nên độc đáo hơn, thu hút mọi ánh nhìn của người qua đường.

Toàn bộ ngoại thất của ngôi nhà ống sử dụng gam màu trắng làm màu chủ đạo, xen kẽ một chút điểm nhấn mảng miếng của những viên đá trang trí và Conwood giả gỗ tại mặt tiền. Bên cạnh đó, hệ thống cửa của mẫu nhà cũng được thiết kế sơn giả gỗ để ăn khớp với thiết kế, giúp tổ ấm của chị Hán và gia Đình thêm phần sáng tạo và cuốn hút hơn so với các ngôi nhà xung quanh.
Với việc sử dụng gạch bông gió tại cổng và cửa ra vào có ô thoáng gió giúp cho bên trong công trình sẽ luôn được luân chuyển. Nhờ vậy mà không gian sống của gia đình chị Hán sẽ trở nên trong lành, thoáng đãng, khắc phục tình trạng bí bách thường thấy ở các ngôi nhà phố.
Nhìn từ trên cao xuống, ngôi nhà phố còn gây chú ý với khoảng sân thượng rộng rãi, mát mẻ. Một bộ bàn ghế đặt tại vị trí này sẽ giúp gia chủ có thêm không gian ngắm cảnh, thưởng trà đầy thư giãn vào đêm tối, sau những giờ làm việc căng thẳng, mệt mỏi.
Ngoài ra, cây xanh là một trong những yếu tố không thể thiếu của các công trình nhà phố. Chúng không chỉ có tác dụng thanh lọc không khí trong lành, mát mẻ, mà còn mang tới giá trị thẩm mỹ dành cho không gian sống của gia đình bạn.
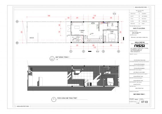
Bản vẽ mặt bằng công năng thiết kế nhà ống 2 tầng 5x12m
Dựa vào nhu cầu sử dụng của gia đình chị Hán và chồng, kiến trúc sư đã đưa ra phương án thiết kế mặt bằng sao cho phù hợp nhất, đảm bảo sự tiện nghi trong quá trình sinh hoạt hàng ngày của gia đình.
- Công năng tầng trệt bao gồm: 1 phòng khách, 1 phòng ngủ, 1 phòng bếp + ăn và 1 toilet.

Ngay tại vị trí sân trước đi vào là gian phòng khách rộng rãi, được bố trí nội thất khoa học và hợp lý. Kế đến là phòng ngủ cạnh cầu thang, có cửa hướng ra sau thông thoáng.
Phòng bếp và phòng ăn nằm tại vị trí trung tâm là sinh khí của của cả gia đình.

- Công năng tầng lầu bao gồm: 2 phòng ngủ, 1 phòng sinh hoạt chung, 1 phòng thờ.

Hai phòng ngủ tại tầng hai được thiết kế bên phải cầu thang, sử dụng chung một toilet tại cuối nhà. Phía trước là phòng sinh hoạt chung và phòng thờ, có cửa hướng ra ban công đầy thoáng đãng, mát mẻ.

Chi phí thiết kế, xây dựng nhà ống 2 tầng 5x12m
Nhằm giúp bạn đọc có thể dự trù chi phí một cách chính xác nhất, Xây Dựng Nissi đưa ra chi phí thiết kế và xây dựng mẫu nhà chị Hán tại Nha Trang như sau:
- Chi phí thiết kế nhà 2 tầng diện tích 5x12m: 10 Triệu Đồng.
- Chi phí hoàn thiện nhà 2 tầng diện tích 5×13.2m: 1 tỷ đồng.
Đội Ngủ Kỹ Sư và Kiến Trúc Sư Nhiệt Huyết, Nhiều năm kinh nghiệm trong lĩnh vự thiết kế xây dựng . Nissi luôn đem tới những sản phẩm tốt nhất tới tay khách hàng, bởi không gì khác ngoài sự hài lòng khách hàng chính là lý do để đội ngũ Nissi tồn tại và phát triển.






Đánh giá
Chưa có đánh giá nào.