Nissi ?
Trong đời người, xây nhà là một việc hệ trọng. Ngôi nhà không chỉ là một nơi che nắng mưa mà còn là tổ ấm, là nơi để bạn quây quần vui vẻ bên gia đình. Chắc chắn khi chuẩn bị xây nhà các bạn sẽ cần phải quan tâm, lo lắng tới rất nhiều vấn đề từ chuẩn bị kinh phí, thiết kế ra sao và xây dựng như thế nào. Một điều mà các bạn sẽ cần phải quan tâm nhiều nhất chính là chọn nhà thầu xây dựng nhà ở uy tín. Hãy đến với Nissi mọi vấn đề của bạn sẽ được giải quyết. Chúng tôi cam kết làm hài lòng quý khách hàng!
Công trình nhà ở gia đình
Chủ đầu tư: Anh Hùng
Địa điểm: Thành phố Vĩnh Long
Thiết kế kiến trúc: Kts. Trương Phan Long
Đơn vị thiết kế & xây dựng: Công ty cổ phần kiến trúc & xây dựng Nissi
Kinh phí đầu tư: 2,2 tỷ
Năm thực hiện: 2020

Giá trị của nhà ở kết hợp kinh doanh
- Tiết kiệm chi phí xây dựng
- Tích hợp chức năng khác nhau, gia tăng thu nhập cho các gia đình
- Nằm ở vị trí giao thông thuận lợi dễ dàng thu hút khách hàng tiềm năng

Phương án mặt bằng nhà 2 mặt tiền vừa ở vừa kinh doanh
Thiết kế nhà phố 2 mặt tiền kết hợp kinh doanh có công năng 5 tầng 1 tum. Do nhu cầu ở khá lớn nên tầng 1 và 2 được thiết kế cho thuê văn phòng. Từ tầng 3 trở lên là không gian sinh hoạt của gia đình. Dưới đây là cách bố trí công năng trong nhà cho thuê văn phòng có thang máy.
- Tầng 1: 1 phòng khách + kinh doanh, 1 phòng bếp + ăn, 1 phòng ngủ, wc
- Tầng 2: 1 phòng ngủ Master, 2 phòng ngủ thường, wc
- Tầng 3: 1 phòng ngủ Master, phòng thờ, đọc sách, wc
- Tầng tum: Phòng thờ, sân vườn, phòng giặt, sân phơi đồ
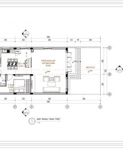
Mặt bằng tầng 1

Nhà ở kết hợp kinh doanh được bố trí để phục vụ nhu cầu kinh doanh. Tầng 1 được thiết kế kết hợp vừa phòng khách vừa làm không gian kinh doanh. Thang bộ và bếp + phòng ăn thiết kế tiếp nối nhau, và có 1 phòng ngủ ,wc
Mặt bằng tầng 2

Khu vực tầng 2 trong nhà 4 tầng sở hữu 1 phòng ngủ Master dành cho vợ chồng anh Hùng. Với diện tích khá rộng tích hợp wc khép kín. Phòng ngủ ông bà hướng ra cửa sổ có ban công thoáng đãng, tràn ngập ánh sáng tự nhiên. Tầng này cũng có thêm 2 phòng ngủ thường dành cho con của gia chủ thiết kế sinh động, phù hợp với lứa tuổi, có phòng sinh hoạt chung cho cả gia đình.
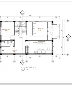
Mặt bằng tầng 3
Không gian tầng 3 là nơi thư giãn đọc sách. có 1 phòng ngủ con, và 1 phòng thờ có ban công rộng rãi, 1 phòng giặt phơi

Để đáp ứng nhu cầu và sở thích trồng cây xanh của vợ chồng anh Hùng thì tầng thượng nơi có không gian rộng rãi
Mặt đứng, mặt bên

Mặt cắt

Nội thất công trình

























Đánh giá
Chưa có đánh giá nào.