THAM KHẢO MẪU THIẾT KẾ NHÀ CẤP 4 MÁI BẰNG ĐƯỢC ƯU CHUỘNG NHẤT HIỆN NAY.
Nhà cấp 4 mái bằng là một trong những mô hình nhà ở hiện đại, thiết kế đơn giản nhưng vẫn đảm bảo không gian sống tiện nghi. Tùy vào nhu cầu của mỗi gia đình mà chủ đầu tư có thể thiết kế nhà cấp 4 mái bằng 2 phòng ngủ, 3 phòng ngủ hoặc 4 phòng ngủ,…Cùng Kiến Trúc Nissi tham khảo những mẫu nhà cấp 4 mái bằng có chi phí hợp lý và phù hợp với nhiều gia đình hiện nay.

Và giờ chúng ta tới với chi tiết từ mặt bằng công năng cho tới phong cách thiết kế dưới đây nhé !!! Kiến Trúc – Xây Dựng Nissi _ Xây Niềm Tin – Dựng Uy Tín.
THÔNG TIN DỰ ÁN THIẾT KẾ NHÀ CẤP 4 MÁI BẰNG 7.5X11.5M
- Chủ đầu tư: Anh Thanh – Chị Toàn.
- Địa chỉ xây dựng: Đông Phú – Quế Sơn -Quảng Nam.
- Diện tích xây dựng: 7.5X11.5 m – 86.25 m2.
- Phong cách kiến trúc: Hiện đại.
- Loại hình kiến trúc: Nhà cấp 4 mái bằng.
- Quy mô: 1 trệt.
- Thiết kế kiến trúc: KTS.Trương Phan Long.
- Đơn vị thiết kế và thi công: Công ty Cổ Phần Kiến Trúc & Xây Dựng Nissi
- Năm thực hiện: 2021
PHỐI CẢNH THIẾT KẾ NHÀ CẤP 4 MÁI BẰNG CÓ SÂN VƯỜN 7.5 X 11.5M.
Với các Kiến trúc sư của Nissi thì việc đầu tiền trước khi bắt tay vào thiết kế công trình nhà ở hay khách sạn chính là lắng nghe mong muốn từ phía khách hàng. Bởi mỗi công trình luôn chứa đựng câu chuyện riêng được kể bởi chủ nhân của nó.

Sự tư vấn bởi các Kiến Trúc Sư có kinh nghiệm thì những sở thích, trải nghiệm và suy nghĩ của gia chủ được truyền tải một cách hoàn hảo tới ngôi nhà.
Sử dụng các phần mềm hiện đại công với kỹ năng đặt biệt thì chỉ có các KTS mới có thể cho các bạn thấy được hình dạng, màu sắc, chất liệu và cả không gian trong, ngoài công trình trước cả khi nó được xây dựng.
Toàn bộ ngoại thất của ngôi nhà ống sử dụng xám của gạch trang trí sang trọng , ốp thằng đứng tạo cảm giác cao ráo cho mặt đứng. Bên cạnh đó, hệ thống cửa của mẫu nhà cũng được thiết kế sử dụng nhôm xing-fa để ăn khớp với thiết kế, giúp tổ ấm của Anh Thanh – Chị Toàn thêm phần sáng tạo và cuốn hút hơn so với các ngôi nhà xung quanh.
Nhìn từ trên cao xuống, ngôi nhà phố còn gây chú ý với khoảng sân thượng rộng rãi, mát mẻ. Một bộ bàn ghế đặt tại vị trí này sẽ giúp gia chủ có thêm không gian ngắm cảnh, thưởng trà đầy thư giãn vào đêm tối, sau những giờ làm việc căng thẳng, mệt mỏi.
Ngoài ra, cây xanh là một trong những yếu tố không thể thiếu của các công trình nhà phố. Chúng không chỉ có tác dụng thanh lọc không khí trong lành, mát mẻ, mà còn mang tới giá trị thẩm mỹ dành cho không gian sống của gia đình bạn.
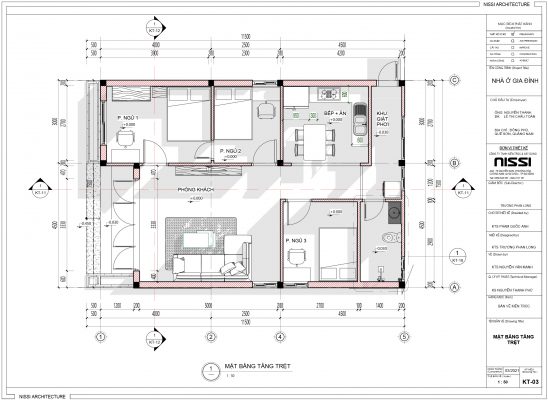
BẢN VẼ MẶT BẰNG CÔNG NĂNG THIẾT KẾ NHÀ CẤP 4 7.5 X 11.5M
Dựa vào nhu cầu sử dụng của gia chủ, kiến trúc sư đã đưa ra phương án thiết kế mặt bằng sao cho phù hợp nhất, đảm bảo sự tiện nghi trong quá trình sinh hoạt hàng ngày của gia đình.
- Công năng tầng trệt bao gồm: 1 phòng khách, 3 phòng ngủ, 1 phòng bếp + ăn và 1 toilet + khu giặt phơi


Ngay tại vị trí sân trước đi vào là gian phòng khách rộng rãi, được bố trí nội thất khoa học và hợp lý. Các Phòng Ngủ đều được bố trí ở các hướng có thể mở được cửa sổ.
Phòng bếp và phòng ăn nằm tại vị trí kín đáo, riêng tư là nơi cả nhà dành thời gian cho nhau vào mỗi bữa ăn.






CHI PHÍ THIẾT KẾ, XÂY DỰNG NHÀ CẤP 4 MÁI BẰNG 7.5X11.5M
Nhằm giúp bạn đọc có thể dự trù chi phí một cách chính xác nhất, Xây Dựng Nissi đưa ra chi phí thiết kế và xây dựng mẫu nhà anh Thanh tại Quế Sơn- Quảng Nam như sau:
- Chi phí thiết kế nhà cấp 4 diện tích 7.5×11.5m: 10 Triệu Đồng.
- Chi phí hoàn thiện nhà cấp 4 diện tích 7.5×11.5m: 600 Triệu đồng.
Đội Ngủ Kỹ Sư và Kiến Trúc Sư Nhiệt Huyết, Nhiều năm kinh nghiệm trong lĩnh vự thiết kế xây dựng . Nissi luôn đem tới những sản phẩm tốt nhất tới tay khách hàng, bởi không gì khác ngoài sự hài lòng khách hàng chính là lý do để đội ngũ Nissi tồn tại và phát triển.





Đánh giá
Chưa có đánh giá nào.